Commercial Freehold Land for Sale with 360° Green Belt Views in Tanah Lot | Harcourts Purba Bali

Commercial Freehold Land for Sale with 360° Green Belt Views in Tanah Lot

  • Plot A Rp. 6,703,750,000
  • Bali, Tabanan, Beraban, Tanah Lot
    1. For Sale / Hak Milik 5. For Sale / HGB
    Bali, Tabanan, Beraban, Tanah Lot
  • Plot A Rp. 6,703,750,000
    • IDR
    • USD
    • AUD
    • EUR

    Overview

    Property ID: HPC2596
    • 3. Land
    • Property Type
    • 865
    • Lot m²

    Video

    Description

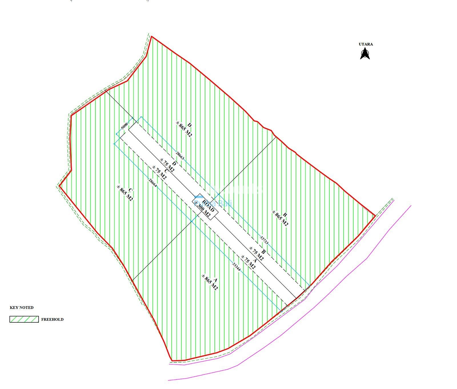
    Located in the increasingly sought-after corridor between Nyanyi and Kedungu, this 3,760 sqm FREEHOLD plot in Tanah Lot, Beraban offers an exceptional opportunity for development in one of Tabanan’s fastest growing areas. With Tourism zoning already in place and the PKKPR (Right to Build) certificate issued, this is a ready-to-develop site that enjoys the kind of privacy and protected outlook that’s nearly impossible to replicate—surrounded in every direction by lush green belt, ricefields, and swaying palm trees.

    The land is flat and rectangular in shape, measuring approximately 54 by 70 metres, with west-facing exposure ideal for capturing Bali’s spectacular sunsets. On-site infrastructure includes water supply and five-metre-wide access roads, with electricity nearby and a natural track that can easily be paved. Whether for a private estate, wellness retreat, or boutique hospitality venture, the configuration and setting of this land lend themselves to a wide variety of commercial or residential concepts.

    Strategically positioned just minutes from Tabanan’s key lifestyle destinations, the site sits in between the thriving creative communities of Nuanu and Kedungu—home to international schools like ProEd Global and Grow in Kedungu—and just a short drive to Padel clubs, cafes, beach clubs, and cultural icons like Tanah Lot Temple. Tanah Lot Beach can be reached in five minutes, while Nuanu Creative City is only twelve minutes away.

    The land is available either as a whole (3,760 sqm at IDR 725 million per are) or as a subdivided 865 sqm plot (IDR 775 million per are), with the potential option of acquiring the land as a business via a PT PMA. With end-of-road privacy, rare 360-degree green belt surroundings, and freehold status, this is a land investment with strong upside potential in a location that’s quickly emerging as Bali’s next residential and creative hotspot.

    Nearby: Tanah Lot Beach 600 m, The Beach Love 800 m, Kedungu Beach 1 km, Jungle Padel Kedungu 1.5 km, Kabunku Coffee 1.7 km, Kedungu Hype Cafe 2 km, Nuanu Creative City 3 km


    Address

    • Area Tabanan
    • Island Bali
    • Location Beraban, Tanah Lot
    • Country Indonesia

    Details

    Updated on October 2, 2025 at 1:20 pm
    • Property ID: HPC2596
    • Price: Plot A Rp. 6,703,750,000
    • Land Area: 865 m²
    • Property Type: 3. Land
    • Property Status: 1. For Sale / Hak Milik, 5. For Sale / HGB
    • Property Title: Freehold
    • Land Feature: Level Land, Rice Field
    • Environment: Village

    Contact Information

    View Listings

    Enquire About This Property

    Compare listings

    Compare
    Fathi Talib
    • Fathi Talib
    ×