Freehold Off-Plan Smart Villas Near Uluwatu’s 5-Star Resorts | Harcourts Purba Bali

Freehold Off-Plan Smart Villas Near Uluwatu’s 5-Star Resorts

  • Pre-sale Offer IDR. 7,500,000,000
  • IDR. 9,000,000,000/Turnkey
Bali, Bukit South, Pecatu
5. For Sale / HGB
Bali, Bukit South, Pecatu
  • Pre-sale Offer IDR. 7,500,000,000
  • IDR. 9,000,000,000/Turnkey
  • IDR
  • USD
  • AUD
  • EUR

Overview

Property ID: HPC1607
  • 1. Villa
  • Property Type
  • 3
  • Bedrooms
  • 3
  • Bathrooms
  • 130
  • m²
  • 310
  • Lot m²

Description

Nestled in the exclusive enclave of Goa Lempeh, Pecatu, this brand-new villa project offers a rare opportunity to own a smart, contemporary home in one of Bali’s most prestigious coastal neighborhoods—just five minutes’ drive from the nearest beach – and ten minutes from family friendly Melasti beach. With only three units available, each villa is thoughtfully designed to offer privacy and modern luxury, all within a short distance of iconic destinations like the Bulgari Resort, Six Senses, Oneeighty Dayclub, and The Cave by Chef Ryan Clift.

LIMITED PRE-SALE INVESTOR OFFER

For a limited time, we are offering a special pre-sale package that provides enhanced security and significant savings. This offer allows you to acquire the freehold land title first, putting you in a secure position of ownership before construction commences.

Turnkey Price: IDR 9,000,000,000
Special Pre-Sale Package Price: IDR 7,500,000,000

This pre-sale package is structured as follows:

  • Stage 1: Freehold Land Acquisition: IDR 4,000,000,000
  • Stage 2: Construction Contract: IDR 3,500,000,000

Key Advantages of this Offer:

  • Enhanced Security: Secure the Freehold (SHM) land title in your company name at the start of the transaction (provided free of charge).
  • Major Savings: Benefit from a pre-sale discount of IDR 1.5 Billion.
  • Staged Payments: A structured payment schedule will be provided for the construction phase, aligning with project milestones.

 

Contact us to learn more about the detailed payment plan and to secure this offer.

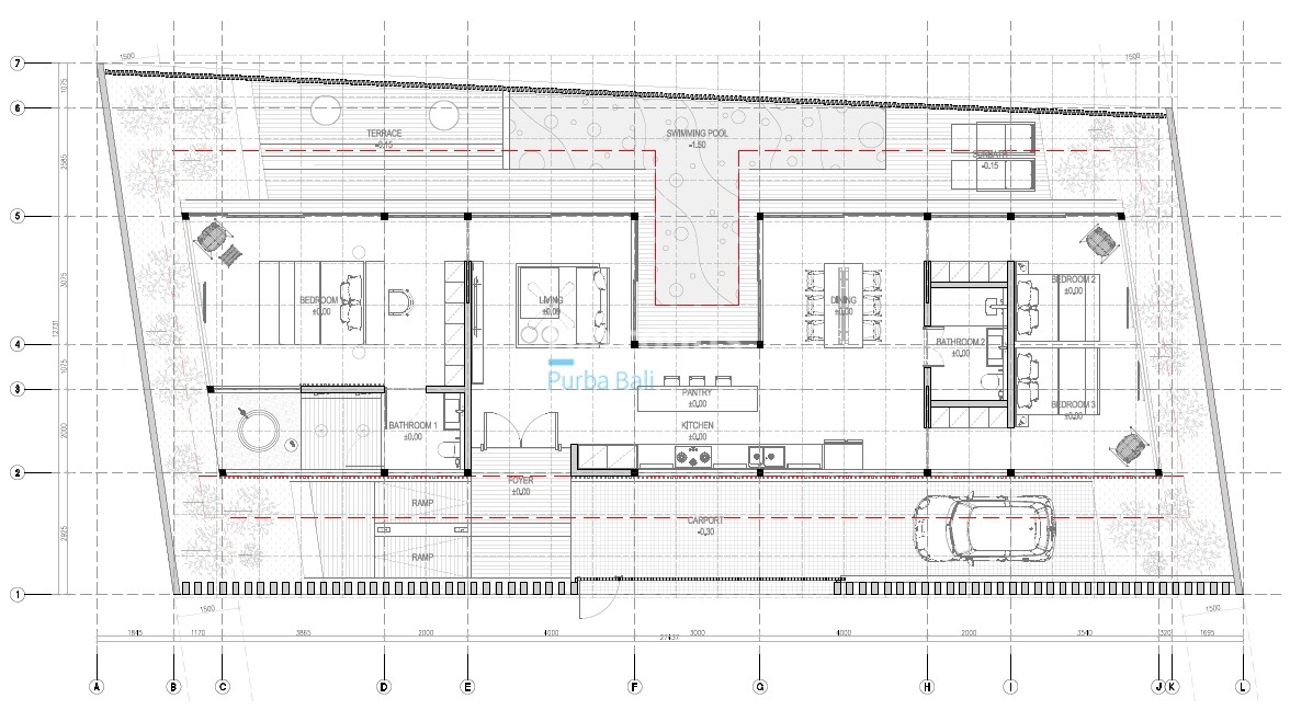
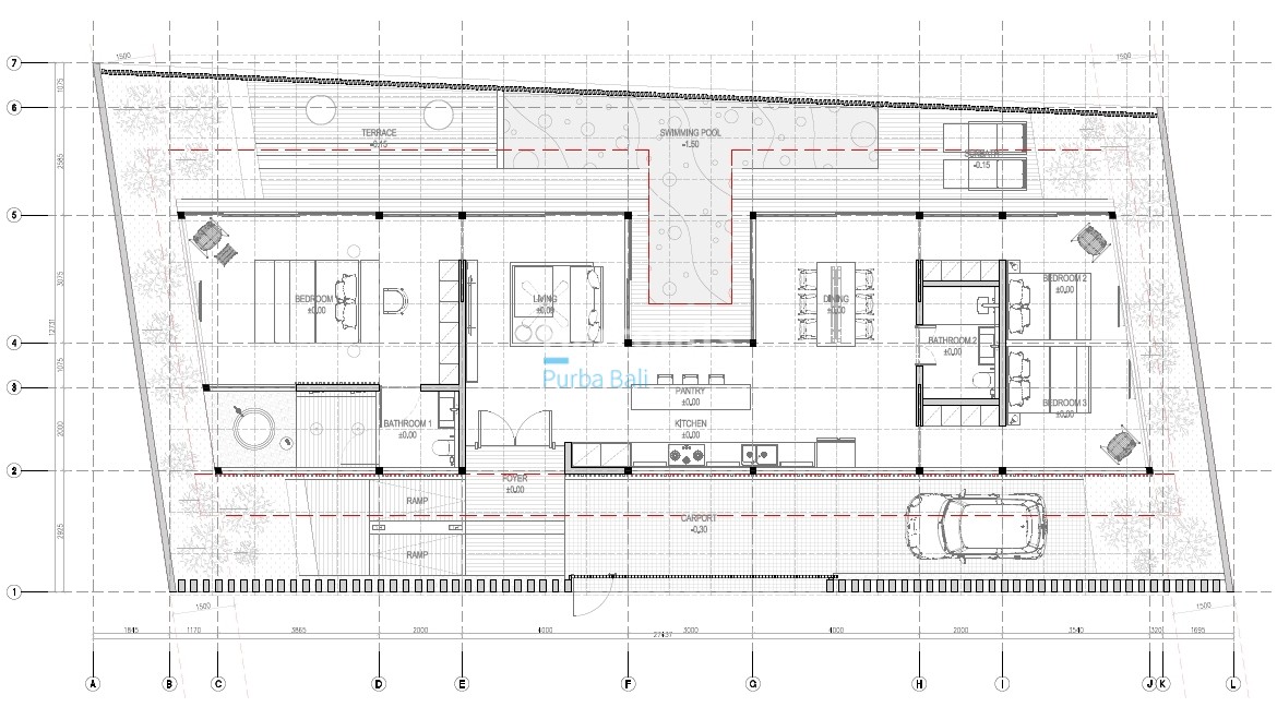
This single-storey, three-bedroom villa is built on a freehold plot of 310 sqm, with a building size of 130 sqm. The design is a mix of contemporary style and comfort, featuring fully enclosed living and dining areas. The villa has a fully equipped kitchen, a cozy living room, and two modern bathrooms. Built to Australian standards, this property offers quality construction and smart living. All home systems are integrated into a smart home platform, which you can control right from your phone.

Outdoors, the east-facing 6 x 3 meter swimming pool with a built-in pool bar connects to the kitchen and an 100 sqm deck space, which extends into the lounge area and merges with a 12 x 2 meter lap pool, forming a stylish T-shaped design. The villa’s west-facing aspect ensures beautiful afternoon light, while private parking for one car, a paved 3-meter-wide access road, and PDAM water supply add to everyday convenience. The villa comes fully furnished and is delivered turnkey-ready within 18 months of deposit.

We are offering a free solar package with 20kW of solar panels and a 50kW battery to anyone who signs up for the off the plan sale of land + construction contract. Run your Air Con all day for no extra cost!

Nearby: Bvlgari Resort 300 m, Sangkar Restaurant 600 m, Oneeighty Dayclub 650 m, The Cave by Chef Ryan Clift 700 m, Six Senses Uluwatu 1 km, Nunggalan Beach 1 km, Alila Uluwatu 2 km

  • Area Bukit South
  • Island Bali
  • Location Pecatu
  • Country Indonesia

Details

Updated on April 13, 2026 at 10:50 am
  • Property ID: HPC1607
  • Price: Pre-sale Offer IDR. 7,500,000,000
  • Property Size: 130 m²
  • Land Area: 310 m²
  • Property Type: 1. Villa
  • Property Status: 5. For Sale / HGB
  • Bedrooms: 3
  • Bathrooms: 3
  • Building Style: Contemporary
  • Building Status: , Off the plan
  • Location Preference: Close to beach, Close to restaurants, Ocean view
  • Furniture: Fully Furnished
  • Kitchen: Stove/Hob
  • Bathroom: Tub, Rain Shower
  • Pool Details: Shape - Rectangular
  • Property Features: Private Swimming Pool
  • Property Title: Freehold

Contact Information

View Listings

Enquire About This Property

Similar Listings

Compare listings

Compare
Siti Salmah Purba, S.H.
  • Siti Salmah Purba, S.H.